Gönnen Sie sich Ihre Frei(t)räume zur Regeneration...
Kastner Landschaftsarchitektur
'Die Träumenden und die Wünschenden halten den feineren Stoff des Lebens in den Händen.'
Zitat von Franz Kafka
Fachkundige, zuverlässige Planung und Bauüberwachung, in allen Grün- und Umweltbereichen
Verlässliche Kostenvoranschläge
Flexible
Terminauswahl
Umfangreiches
Portfolio
Rundum-Sorglos-Garantie
Unser Leistungsspektrum
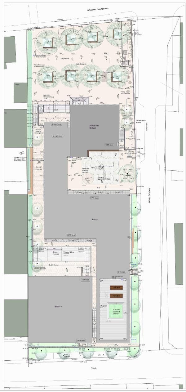
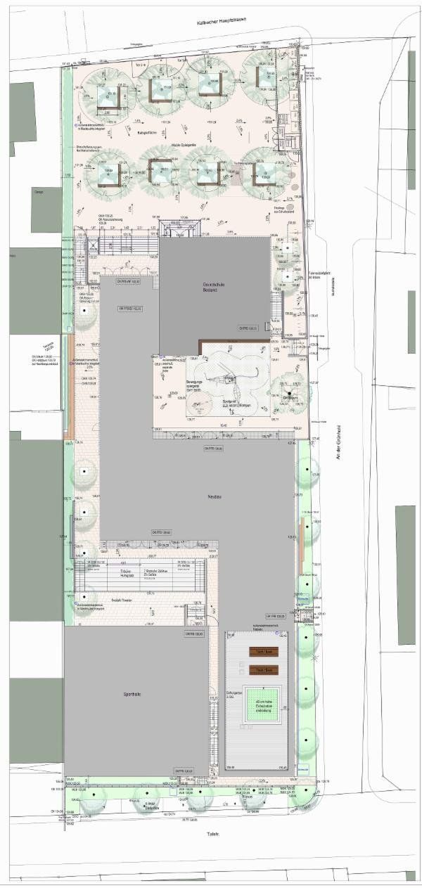
Werfen Sie einen Blick auf einige unserer Referenzprojekte.
Unsere hochqualifizierten Fachkräfte erledigen jede Aufgabe schnell und zuverlässig.
Unser Büroteam besteht zur Zeit aus einer Landschaftsarchitektin (Eintrag in Architektenkammer Hessen), einer Objektplanerin (Studium der Landschaftsarchitektur - Bachelor of Engineering) und Freiraumplanerin (Studium Umweltmanagement und Städteplanung in Ballungsräumen - Master of Engineering), Informatikstudent, zeitweise Landschaftsarchitektur Praktikanten sowie je nach Projekterfordernis aus Biologen, Wasserbauern, Vermessungsingenieuren, Statikern, Bauingenieuren.
Ob Garten oder Park, ob Privatanlage oder öffentlicher Raum, wir kümmern uns um jede Art von kreativer Gestaltung . Unsere hochqualifizierten Mitarbeiter freuen sich darauf, jedes Ihrer Projekte zu verwirklichen – mit Sachgeschick und Fingerspitzengefühl.
Ganz gleich, ob Sie schon einen festen Plan haben, oder noch auf Ideensuche sind: Wenden Sie sich mit Ihren Projekten an uns und holen Sie sich eine fachlich qualifizierte Beratung.
Öffnungszeiten
Sie erreichen uns unter der Woche täglich von 9 bis 18 Uhr.
- Mo - Fr
- Nur nach Vereinbarung
- Sa - So
- Geschlossen
+49 67236740426
Kontakt
Schreiben Sie uns und erfahren Sie mehr.































































